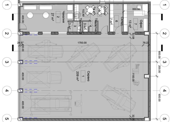
Реконструкция Автосервиз  : Сервиз, Офис, Приемна и Складови помещения.

Основни Параметри:
   – Автосервиз с Офисни помещения
   – Площ: 320 м2
   – Височина: 8 метра

Обхват на работите:

Изготвяне бюджетна рамка за инвестиционното намерение

График за изпълнение

Управление и координация процеси Тръжни процедури:

  • Разрушителни дейности
  • Архитектура и Довършителни работи
  • ОВиК
  • Електричество

Управление и координация на възлагания и договорни отношения

Управление на строителният процес

Изброените проекти и изображения отразяват екипния опит, придобит като част от проектните екипи на генерални изпълнители, а не проекти, реализиран директно от CMSquare.

Вашият коментар

Вашият имейл адрес няма да бъде публикуван. Задължителните полета са отбелязани с *